Grafikens Hus

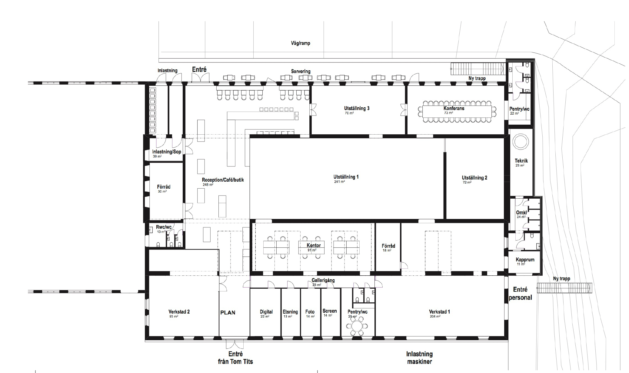
Grafikens Hus är ett museum för samtida konst och grafik som ursprungligen låg i Mariefred men som förstördes i en brand 2014. Nu ska verksamheten återigen få en fast punkt, och den här gången i Södertälje. Vårt uppdrag har varit att anpassa en vacker industribyggnad i tegel, Gjuteriet från 1924, till konstmuseum för Grafikens Hus. Gjuteriets arkitektur präglas av stora rum i öppna samband, verkstadsytor med högt i tak, betonggolv och råa väggytor i tegel och puts. Planen är en tydlig uppdelning i fyra skepp, där mittskeppet reser sig högst med en rymd på över 10 meter. Ljuset från höga fönster i fasad och överljus i de inre delarna ger rummen olika karaktär. 

Genom att fördela programmet efter byggnadens logik kan bygganden ges nytt liv utan stora ingrepp. Anpassningen till grafikens hus bygger vidare på byggnadens kvaliteter där verksamheten placeras efter rummens egenskaper och följer skeppens indelning. Programmet innehöll bland annat verkstäder, utställningslokaler, kontor, restaurang, ateljé, workshop och lek. Även omgivande landskap med entrétorg och anslutning till park.

Foto: Åke E:son Lindman. Visualiseringar: WA

Previous
Previous

Mornington Hotel Stockholm

Next
Next

Vindsvåning, Östermalm