Hotell i italienska Alperna

Pågående ombyggnadsprojekt av ett hotell i italienska alperna med utsikt över Monte Rosa.

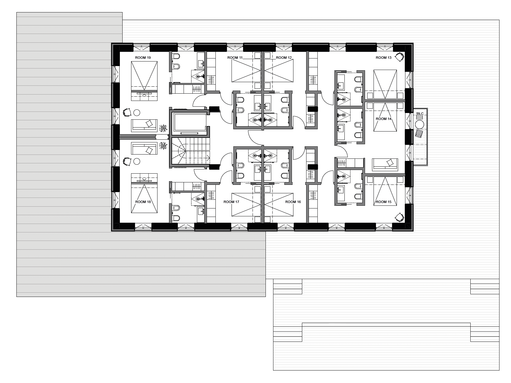
Det befintliga timmerhuset återuppbyggs i traditionell form och material men med ny fönstersättning. Programmet består i en lounge, bar, restaurang, reception, spa och 19 hotellrum. I det här projektet har vi samarbetat med Wingårdhs Arkitekter som ansvar för inredningen.

Byggstart april 2025.

Previous
Previous

Villa E, skärgården

Next
Next

Småhusområde Vallentuna